PROJEKT SCHWARZ
PROJEKT SCHWARZ

Ein Ort voller Leichtigkeit, wo helle Farbtöne in Kombination mit zart lasiertem Naturholz Ruhe und Geborgenheit schenken.

PROJEKT SCHWARZ

Ein Ort voller Leichtigkeit, wo helle Farbtöne in Kombination mit zart lasiertem Naturholz Ruhe und Geborgenheit schenken.

Über das Projekt

Das Projekt Schwarz begeistert mit exklusiven Badmodulen der Serie INVERNESS. Die Bäder verbinden zarte Beigetöne der Fliesen mit zeitlosem Weiß an Wänden und Keramik und schaffen so eine freundliche, einladende Atmosphäre. Eine zart lasierte Holzdecke setzt natürliche Akzente, während chromfarbene Armaturen für stilvolle Highlights sorgen. Das Ergebnis sind Räume, die Klarheit, Ruhe und zeitlose Eleganz miteinander verbinden – perfekt für modernes, lichtdurchflutetes Wohnen.

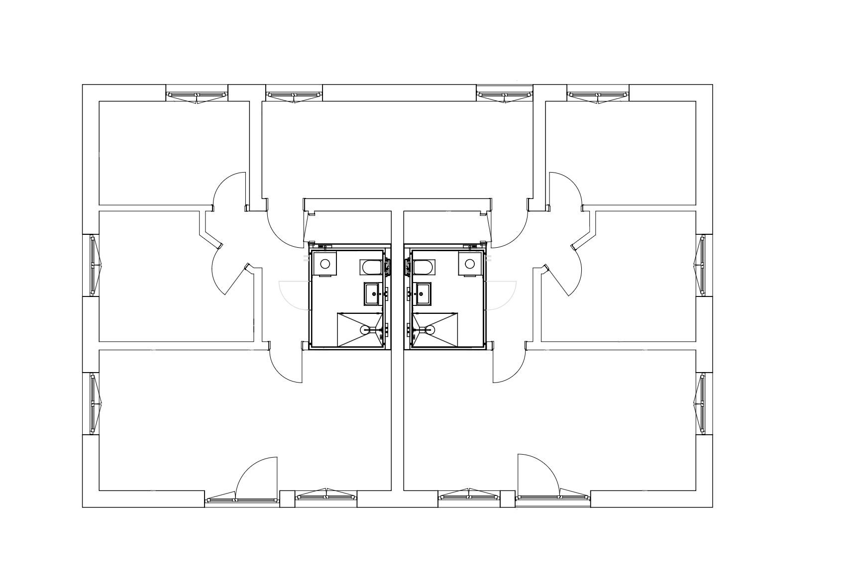
Tjiko-Badmodule

Die Badmodule zeigen, wie offen und großzügig ein Bad auch auf kompaktem Raum wirken kann. Durch ein offenes Raumkonzept und eine durchdachte Anordnung der Elemente entsteht maximale Flexibilität bei der Nutzung, während Komfort nicht zu kurz kommt – zeitlos, hell und angenehm.

Bildnachweis

www.tjiko.de

BAUJAHR
2025
LAND
Deutschland
Objekttyp
5 Mehrfamilienhäuser
Bauunternehmen
Schwarz Bau GmbH
Projektentwickler
Schwarz Bau GmbH
Architekt
Schwarz Bau GmbH
Anzahl Module
12 Modelle
Anzahl Typen
8 Typen
Designlinien
Inverness