Panorama-Wohnbau
Panorama-Wohnbau

Ein exklusiver Wohnbau mit Panorama-Charakter – gestaltet für modernes Wohnen, stilvolle Rückzugsorte und ein Lebensgefühl zwischen urbaner Eleganz und Ruhe.

PANORAMA-WOHNBAU

Ein exklusiver Wohnbau mit Panorama-Charakter – gestaltet für modernes Wohnen, stilvolle Rückzugsorte und ein Lebensgefühl zwischen urbaner Eleganz und Ruhe.

Über das Projekt

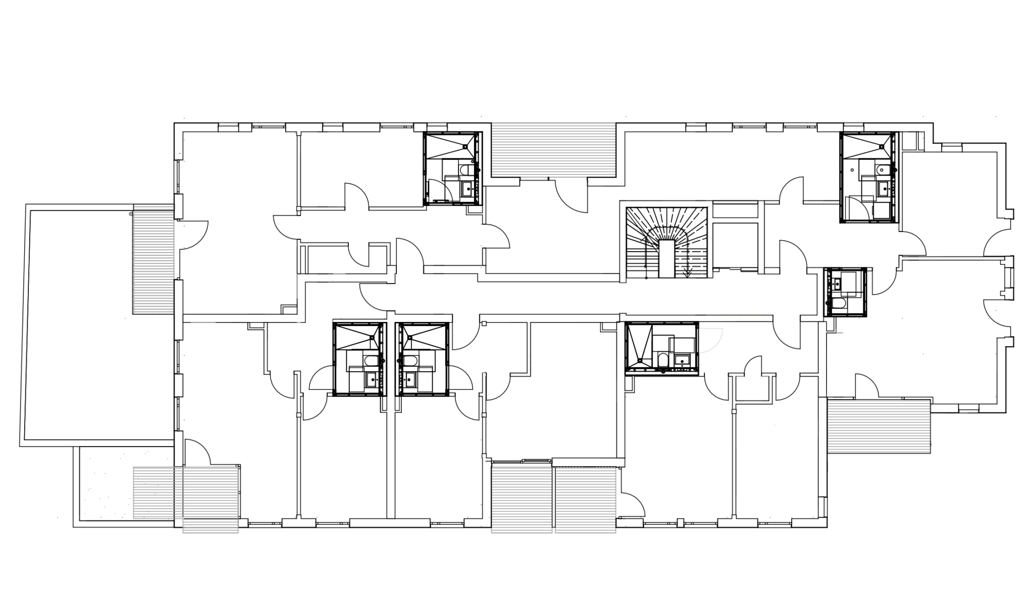
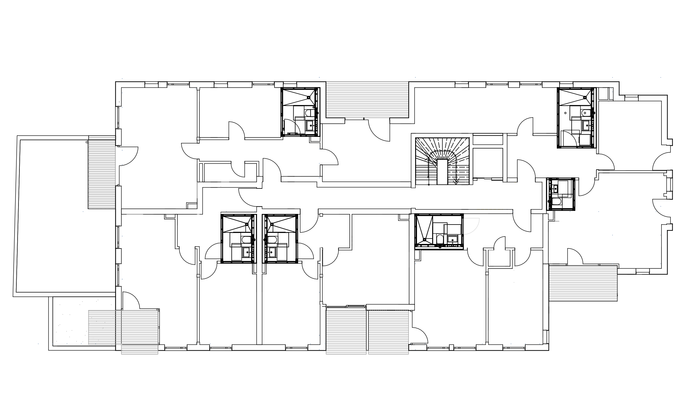
Der Panorama-Wohnbau in der Hirschstraße vereint moderne Architektur mit anspruchsvoller Wohnqualität in einer urbanen Lage. Großzügige Wohnflächen, durchdachte Grundrisse und ausgezeichnete bauliche Details schaffen ein Zuhause, das sowohl funktional als auch elegant ist.

Tjiko-Badmodule

Die Badmodule überzeugen durch eine klare, durchdachte Gestaltung und eine hochwertige Ausstattung. Großzügige Raumkonzepte, präzise Linienführung und eine harmonische Anordnung der Elemente schaffen ein modernes und zugleich ruhiges Ambiente. Edle Oberflächen in Anthrazit treffen auf chromfarbene Armaturen. Das Ergebnis sind stilvolle Bäder, die Funktionalität, Komfort und zeitlose Eleganz vereinen.

Bildnachweis

www.tjiko.de

BAUJAHR
2023
LAND
Deutschland
Objekttyp
Wohn- & Geschäftshaus
Bauunternehmen
Prutscher Holzbau GmbH
Projektentwickler
Panorama Wohnbau GmbH
Architekt
FG Architekten und Sachverständigen GmbH
Anzahl Module
18 Module
Anzahl Typen
4 Typen
Designlinien
Inverness